Commercial Space - view on the port

Carat Properties

Carat Properties

Tour Odéon 36 av. de l'Annonciade

Price : 2 756 000 €
No. rooms : -
Product type : Premises
Building : Le Michelangelo
District : Fontvieille
City : Monaco
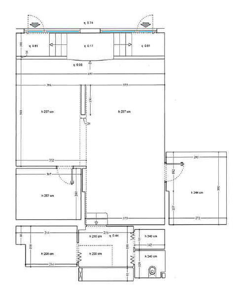
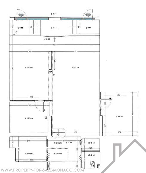
Living area : 85.5 sqm
Total area : 85.5 sqm
Floor : rdc
Release date : 30/09/2026

Nice surface area for this commercial space located on the port of Fontvieille, which can also be used as an administrative office

With a comfortable surface area of  85.5 m², on the ground floor, it has 2 large windows and 2 access doors.

It consists of a spacious main room, 2 side rooms, 1 laundry room, 1 storage room, 1 toilet, and cupboards.

Sold rented 4814,77€ TTC/ month , until 30/09/2026

Carat Properties

Carat Properties

Tour Odéon 36 av. de l'Annonciade

Contact

AFGIJN
Copy the antispam code into the field on its right
* required information

Property location

Districts of Monaco

Anse du Portier Carré d'Or Condamine Fontvieille Jardin Exotique La Rousse - Saint Roman Larvotto Monaco-Ville Moneghetti Monte-Carlo Port