MONEGHETTI / RIGHT TO LEASE

Coldwell Banker Etic Realty

Coldwell Banker Etic Realty

15, boulevard Princesse Charlotte

Price : 260 000 €
No. rooms : 3 rooms
Product type : Sale of commercial lease
Building : Moneghetti
District : Moneghetti
City : Monaco
Living area : 60 sqm
Total area : 60 sqm
Floor : RDC
Release date : Immédiatement

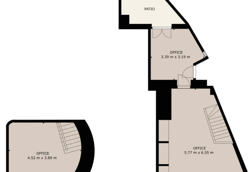
On the ground floor, premises including 2 offices, and a large basement. It is air-conditioned and can accommodate offices or a shop.

Lease 3/6/9 expiring on 28/02/2027. Rent: 3082 euros per month including charges.

All shops except restaurant 

Coldwell Banker Etic Realty

Coldwell Banker Etic Realty

15, boulevard Princesse Charlotte

Contact

GORSVZ
Copy the antispam code into the field on its right
* required information

Property location

Districts of Monaco

Anse du Portier Carré d'Or Condamine Fontvieille Jardin Exotique La Rousse - Saint Roman Larvotto Monaco-Ville Moneghetti Monte-Carlo Port