RIGHT TO LEASE: CARRÉ D'OR

Agence Gramaglia

Agence Gramaglia

9, avenue Princesse Alice

Magnificent shop 2 steps from the casino, renovated with luxurious materials and with a beautiful window

Price : 4 500 000 €
No. rooms : 6
Product type : Sale of commercial lease
District : Carré d'Or
City : Monaco
Living area : 240 sqm
Total area : 300 sqm
Terrace area : 60 sqm
Floor : RDC
Release date : Rapidement

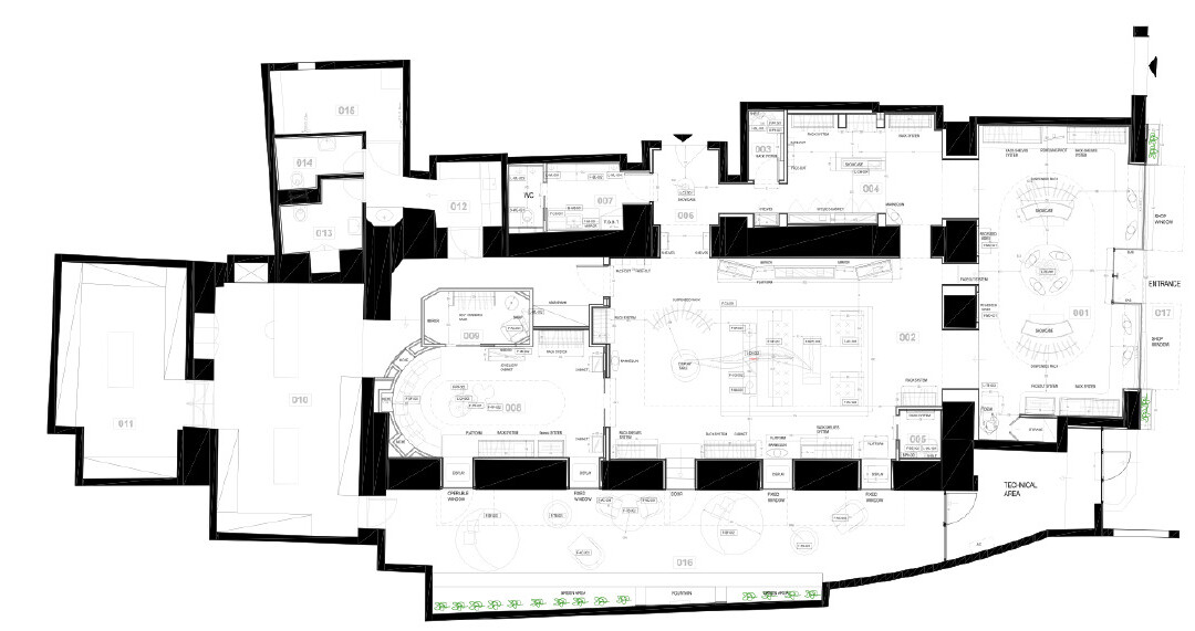
Ideally located in the heart of the Carré d'Or, this shop with a total area of 300 sqm completely renovated with high quality materials consists of:

- an entrance, a large lounge, a VIP lounge, a small lounge with its fitting room, 1 powder room, a men's and women's toilet, a kitchen area, an office, a workshop, a storage space and a private terrace

Fully air-conditioned and secure (surveillance cameras)

Activities authorised in the current lease: purchase and sale of high-end ready-to-wear for men, women and children, including fur, shoes, leather goods and all fashion accessories, perfumes, household and decorative items, 

Agence Gramaglia

Agence Gramaglia

9, avenue Princesse Alice

Contact

GQTVWY
Copy the antispam code into the field on its right
* required information

Property location

Districts of Monaco

Anse du Portier Carré d'Or Condamine Fontvieille Jardin Exotique La Rousse - Saint Roman Larvotto Monaco-Ville Moneghetti Monte-Carlo Port