Commercial premises - Administrative office

Agence Continentale

Agence Continentale

19, boulevard des Moulins

The Michelangelo is located in the heart of Fontvieille, in the immediate vicinity of shops, pedestrian routes and the port. Its location offers a dynamic and practical setting, appreciated for the quality of its environment and the visibility it allows for professional activities.

Price : 2 756 000 €
No. rooms : 3 rooms
Product type : Premises
Building : Le Michelangelo
District : Fontvieille
City : Monaco
Living area : 85 sqm
Total area : 85 sqm
Floor : Rez-de-Chaussée
Release date : 30/09/2026

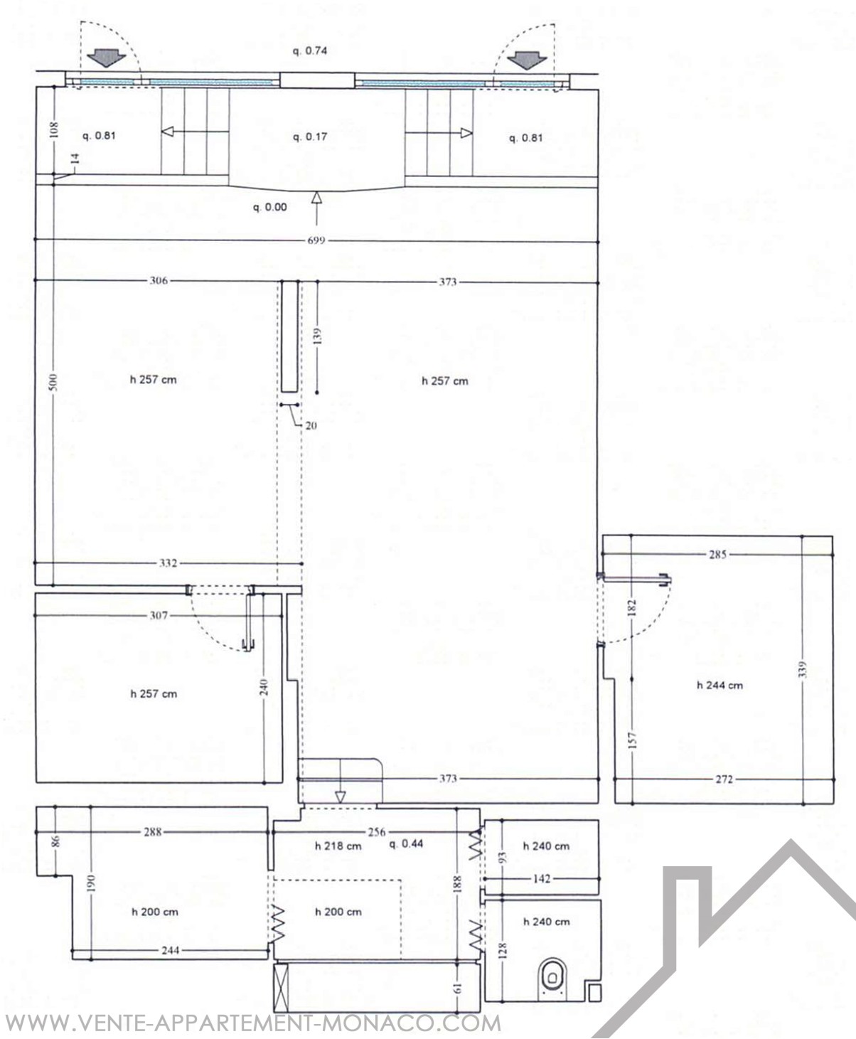
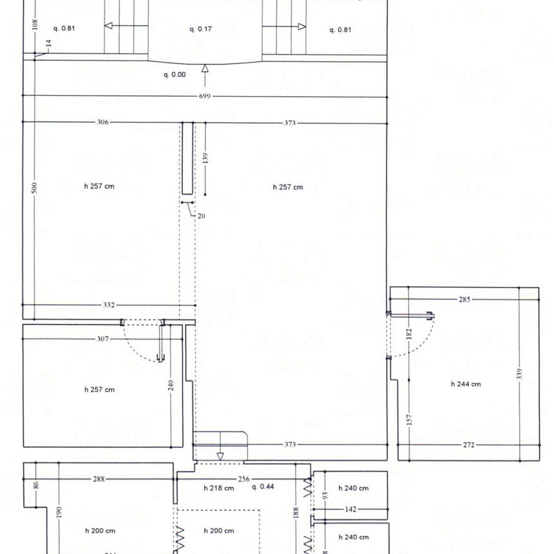
Description of this room

This bright premises has a large window. It consists of a main room extended by two secondary spaces, a laundry room, a storage area and sanitary facilities. The complex offers a functional organisation suitable for administrative or commercial use, reinforced by the presence of bright and easily convertible volumes.

Currently rented under a 3-6-9 lease expiring on September 30, 2026, it hosts a hairdressing activity. This place is an effective address to develop an activity in a lively and well-structured district.

Agence Continentale

Agence Continentale

19, boulevard des Moulins

Contact

FGORTW
Copy the antispam code into the field on its right
* required information

Property location

Districts of Monaco

Anse du Portier Carré d'Or Condamine Fontvieille Jardin Exotique La Rousse - Saint Roman Larvotto Monaco-Ville Moneghetti Monte-Carlo Port