AMBASSADOR - OFFICE

AFIM SAM

AFIM SAM

3, avenue de Grande Bretagne

Price : 4 140 000 €
Product type : Office
Building : Ambassador
District : Monte-Carlo
City : Monaco
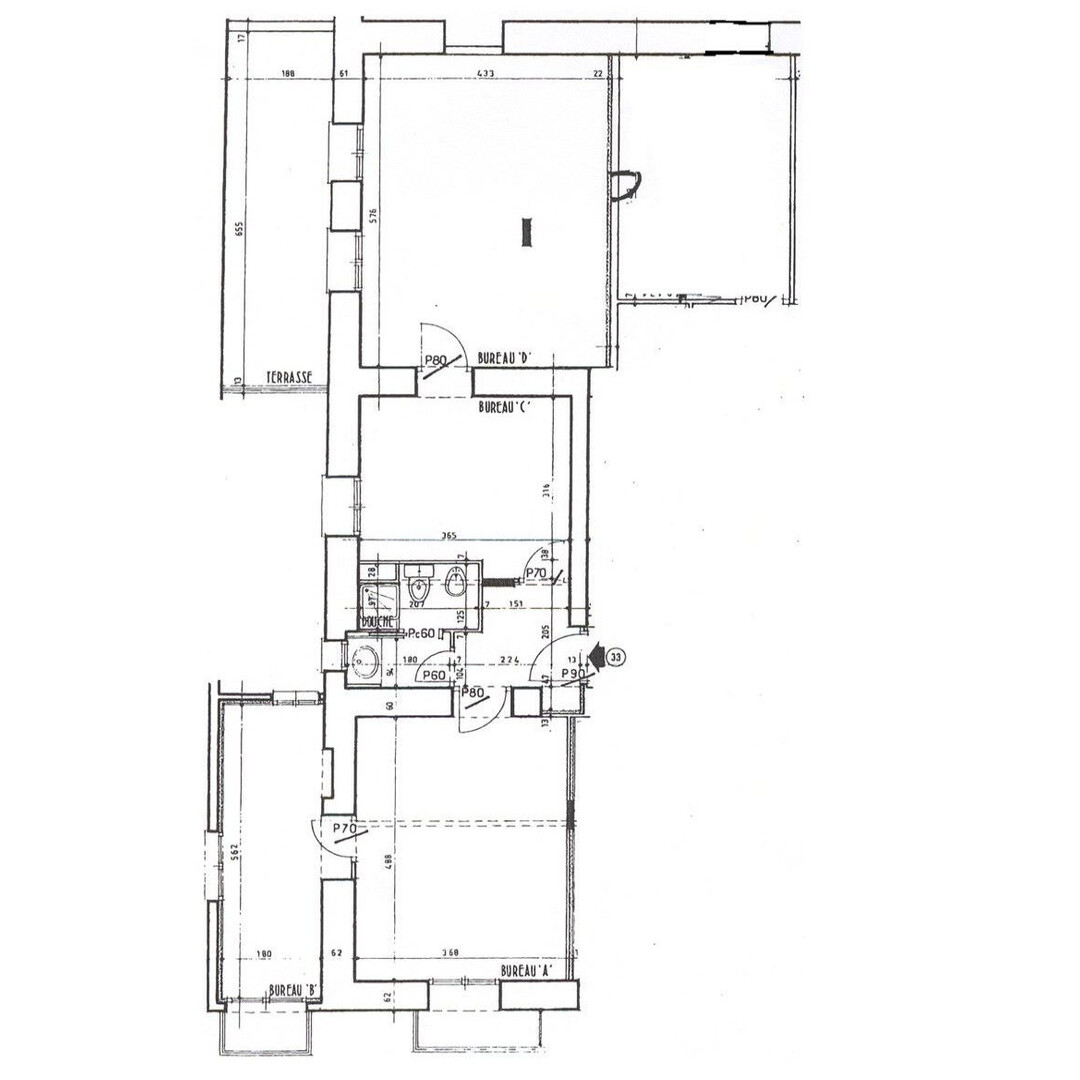
Living area : 123.05 sqm
Total area : 123.05 sqm
LARGE 4-room OFFICE in a bourgeois building, close to all amenities, located on Boulevard des Moulins. It has a total surface area of 123 m² including 116 m² of living space and a 7 m² terrace. Description: 4 rooms, 1 secure room with armored door, a bathroom with shower, WC and sink. Possibility of transforming into residential use Free quickly.
AFIM SAM

AFIM SAM

3, avenue de Grande Bretagne

Contact

DFKRSX
Copy the antispam code into the field on its right
* required information

Property location

Districts of Monaco

Anse du Portier Carré d'Or Condamine Fontvieille Jardin Exotique La Rousse - Saint Roman Larvotto Monaco-Ville Moneghetti Monte-Carlo Port