La Rousse - Large, tastefully furnished studio apartment.

John Taylor

John Taylor

20, boulevard des Moulins

"At the eastern entrance of Monte-Carlo, discover this superb 40 m² studio nestled in a prestigious building with breathtaking views of the sea and Cap Martin. Enjoy an exceptional living environment, between green parklands, the beaches of Beach Monte-Carlo and proximity to the Monte Carlo Tennis Club and the ISM. The building offers a swimming pool, concierge service, 24-hour security and catering service. Cellar included, parking available extra."

Price : 2 490 000 €
No. rooms : Studio
Product type : Apartment
Building : Parc Saint Roman
District : La Rousse - Saint Roman
City : Monaco
Living area : 40 sqm
Total area : 40 sqm
Furnished : 1
Parking : 1

Magnificent studio located in a prestigious building at the eastern entrance of Monte-Carlo, bordered by a park and close to the Monte Carlo Tennis Club, the ISM school and the beaches of Beach Monte-Carlo.

The building benefits from an excellent security and concierge service. It also has a swimming pool and a catering service.

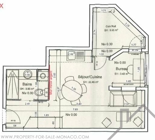
The studio, with an area of 40 m², includes an entrance hall with fitted wardrobe, a main room with an equipped kitchen, a sleeping area and a full shower room. It enjoys a view of the sea and Cap Martin. The studio is sold with a cellar and parking.

John Taylor

John Taylor

20, boulevard des Moulins

Contact

AGLNTU
Copy the antispam code into the field on its right
* required information

Property location

Districts of Monaco

Anse du Portier Carré d'Or Condamine Fontvieille Jardin Exotique La Rousse - Saint Roman Larvotto Monaco-Ville Moneghetti Monte-Carlo Port