Sale administrative office Monaco Fontvieille Luxury Residence

3 500 000 €
Segond Immobilier

Segond Immobilier

45 Rue Grimaldi

The office is quietly located on the ground floor, with large windows overlooking the gardens.

#Ref : 84405615
Price : 3 500 000 €
Product type : Office
Building : Raphael
District : Fontvieille (Monaco)
Living area : 94 sqm
Total area : 94 sqm
Floor : rdc
Release date : 14/09/2024

More details

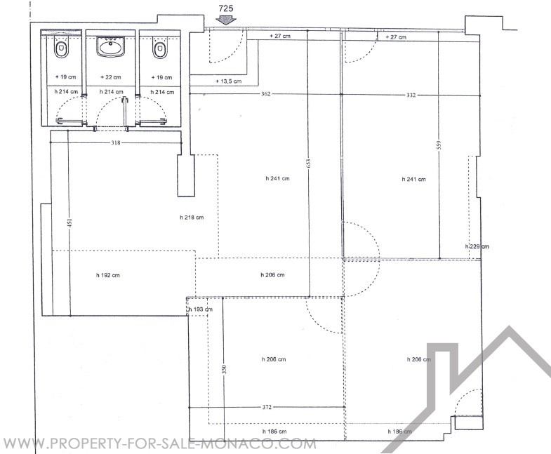
We are pleased to offer for sale a beautiful new administrative office with a total surface area of 94 sq.m. located in the luxury residence the Raphael in the Fontvieille district of Monaco.

Composition : two access doors, a main room, a storage room, two toilets, parquet flooring. The office is currently partitioned.

You will benefit from services provided by the Fontvieille Village Guard Station: parcel delivery, security through regular rounds and on-call services (air conditioning, heating, etc.).

The lease is for 1 year, expiring on 14/09/2024, with a monthly rent of 7,000€ + VAT 20% + 400€ flat-rate monthly charges. Total monthly rent: 8,800€.
(Water consumption, air-conditioning and heating supplies included. The maintenance contract for the fan coil units is the responsibility of the tenant).

Segond Immobilier

Segond Immobilier

45 Rue Grimaldi

Contact

AFGQVZ
Copy the antispam code into the field on its right
* required information

Property location

Fontvieille

The district of Fontvieille is located in the western part of Monaco, where offices, factories, residential buildings and a firefighter center can be found.

A large part of this 33-hectar zone was acquired through expansion on the sea, which allowed a second harbor to be built, as well as the famous football stadium Stade Louis II, the Heliport, a shopping mall, a zoo, the Monaco Top Car museum and the Stamp & Coins museum.

On top of all the residential buildings, which are mainly reserved for Monegasques, luxurious apartments with splendid sea landscapes can also be found such as the Memmo Center, the Seaside Plaza or the Terrassess du Port...

Districts of Monaco

Mareterra Carré d'Or Condamine Fontvieille Jardin Exotique La Rousse - Saint Roman Larvotto Monaco-Ville Moneghetti Monte-Carlo Port