Boulevard des Moulins - Commercial Space

Price on request
Heritage Properties

Heritage Properties

31, avenue Princesse Grace

#Ref : HP-VPBM2
Price : On request
Product type : Commercial enterprise
District : Monte-Carlo (Monaco)
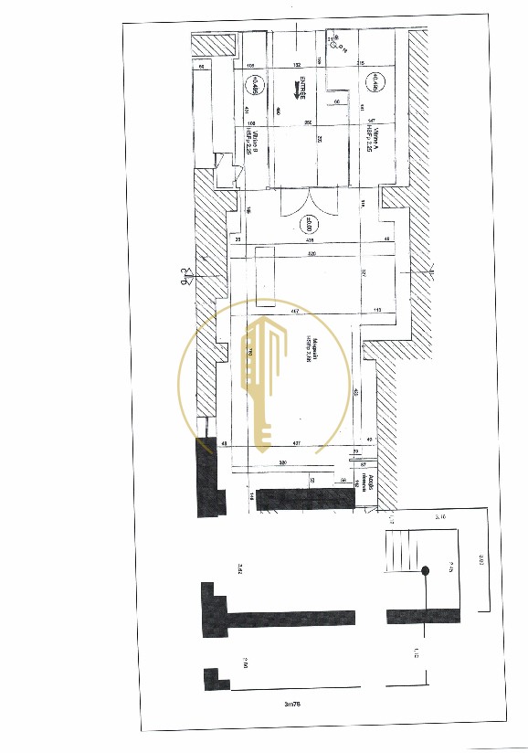
Living area : 330 sqm
Total area : 330 sqm

More details

In the heart of the Principality, in a charming 6-storey residence from 1905.

Ideally located on Boulevard des Moulins, this premises features 150 sqm of useable space with two large window displays, a basement composed of an independant 30 sqm office and a 150 sqm cellar.

Heritage Properties

Heritage Properties

31, avenue Princesse Grace

Contact

GIJPTX
Copy the antispam code into the field on its right
* required information

Monte-Carlo

Discover apartments in the heart of Monte Carlo.

This iconic district is famous for luxury residences, elegant lifestyle and world-class landmarks.

Districts of Monaco

Mareterra Carré d'Or Condamine Fontvieille Jardin Exotique La Rousse - Saint Roman Larvotto Monaco-Ville Moneghetti Monte-Carlo Port